T-House TH1

W pełni wyposażony. Wchodzisz i mieszkasz.

Izolacja klasy A+. Niskie rachunki.

Stalowy szkielet. Trwałość na dekady.

Designerskie wnętrze. Jakość hotelowa.

Gotowy w 8-12 tygodni.

Postaw gdzie chcesz.

Odporny na ogień i wilgoć.

Dopasuj do swoich potrzeb.

Doświadcz życia w gotowym luksusie

Przenieś się do wnętrza T‑House. Poczuj klimat przestrzeni, gdzie nowoczesny design łączy się z komfortem, a natura wpada przez wielkie okna. Przewiń galerię i zobacz, jak wygląda prawdziwy dom bez kompromisów – gotowy, by w nim zamieszkać.

Nasza najbardziej precyzyjna konstrukcja modułowa

Każdy T-House to wielowarstwowy system precyzyjnie połączonych materiałów, który gwarantuje trwałość, izolację i komfort. Konstrukcja ze stali ocynkowanej stanowi szkielet o wysokiej wytrzymałości. Od zewnątrz chroni go 3-milimetrowa płyta aluminiowa, a od wewnątrz – europejska deska sosnowa oraz płyty gipsowo-kartonowe. Przestrzeń międzywarstwową wypełnia izolacja poliuretanowa, zapewniająca doskonałą termoizolację i ciszę. Duże szyby zespolone dwuwarstwowe (6+24A+6) oraz aluminiowe okna wpuszczają światło, nie tracąc przy tym właściwości izolacyjnych. Całość dopełnia zintegrowany sufit oraz hydrofobowa powłoka zabezpieczająca przed wilgocią. To konstrukcja, w której każdy detal ma znaczenie.

Szczelność, cisza, komfort – zamknięte w jednej konstrukcji

Przestrzeń, która oddycha światłem i spokojem

Gdy solidna konstrukcja jest już gotowa, jej sercem staje się wnętrze – przemyślane, jasne i zapraszające. Do środka T-House wpada mnóstwo naturalnego światła przez duże, zespolone szyby, które nie tylko otwierają widok na otoczenie, ale także stanowią integralną część energooszczędnej powłoki budynku. Naturalne materiały wykończeniowe, takie jak europejska deska sosnowa i matowe powierzchnie, tworzą ciepłą, minimalistyczną atmosferę. Przestronny, otwarty układ pozwala na swobodną aranżację, a każdy detal – od wbudowanego oświetlenia LED po praktyczne rozwiązania przechowywania – został zaprojektowany z myślą o codziennym komforcie. To więcej niż ściany i dach; to gotowa scenografia dla Twojego życia.

Przestrzeń zaprojektowana dla pełnego relaksu

Gotowy od pierwszego dnia

W pełni umeblowany i wyposażony. Po prostu wprowadź się i ciesz się swoją nową przestrzenią bez żadnych dodatkowych zakupów czy aranżacji.

Stały mikroklimat

Zaawansowana izolacja i system klimatyzacji zapewniają przyjemną temperaturę przez cały rok, latem chłodząc, a zimą efektywnie grzejąc.

Technologia w tle

Inteligentne rozwiązania, jak energooszczędne oświetlenie LED i opcjonalny system zarządzania domem, działają niezauważalnie, podnosząc Twój komfort.

Dane techniczne

Model: T-House TH1

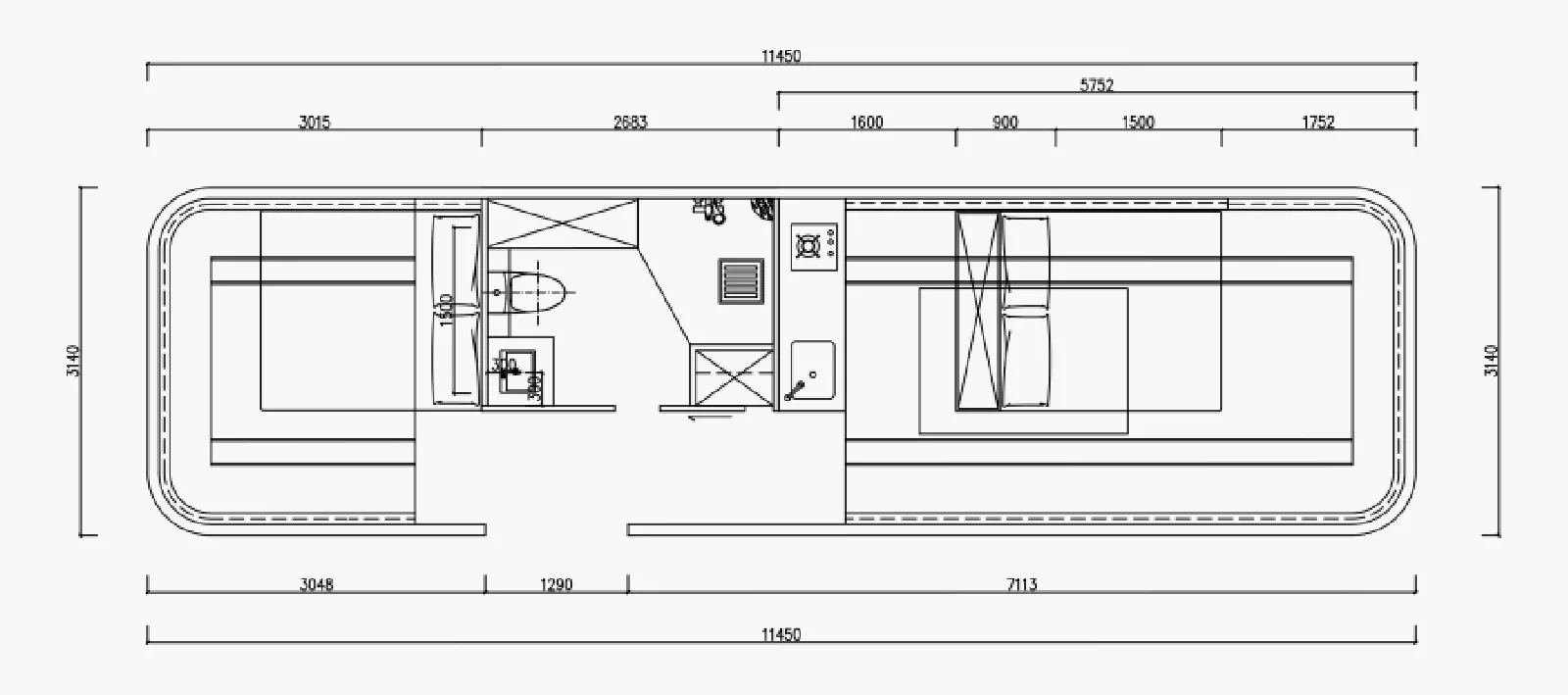
Wymiar: 11,5m x 3,3m
Wysokość: 3,2 m
Powierzchnia: 38 m2
Waga: 8000kg
Moc maksymalna: 12kW
Kolor: Biały, szary
Konstrukcja
  • Rama ze stali ocynkowanej

  • Belki mostu głównego (konstrukcja nośna)

  • Obudowa aluminiowa z powłoką fluorowęglową metaliczną odporna na warunki atmosferyczne

  • Płyta aluminiowa połączeniowa

  • Standardowe podpory

  • Płyty z włókna cementowego jako podstawa, wodoodporny materiał drewnopochodny jako pokrycie powierzchni.
  • Warstwa izolacyjna z pianki poliuretanowej/płyty ekstrudowanej (wypełnienie pustej przestrzeni)

  • Obudowa aluminiowa do połączenia belek stalowych

  • Wysokiej jakości panoramiczne okna z podwójnym lub potrójnym szkłem bezpieczeństwa, wypełnione gazem dla izolacji termicznej LOW-E szkło 6+12A+6.

  • Drzwi wejściowe płaskie z aluminium

  • Inteligentne drzwi z blokadą

  • Okna antykondensacyjne

  • Wielowarstwowe elementy sufitowe z materiałów przyjaznych dla środowiska i izolujących.

  • Dekoracyjne panele z włókna bambusowego węglowego.
  • Lampy i paski zewnętrzne LED z regulacją koloru

  • Oświetlenie wewnętrzne LED z regulacją koloru i jasności

  • Instalacje elektryczne renomowanych producentów

  • Inteligentna toaleta z funkcjami automatycznymi
  • Wysokiej jakości umywalka
  • Nowoczesna bateria zapewniająca precyzyjną regulację wody
  • Wielofunkcyjny grzejnik wentylatorowy
  • Wysokiej jakości multifunkcyjna deszczownica pod prysznicem
  • Czujnik dymu – urządzenie do monitorowania stężenia dymu
  • Elektryczne taśmy grzewcze do ochrony przed zamarzaniem rur wodnych
  • Klimatyzacja i ogrzewanie – centralny system ogrzewania i chłodzenia dla optymalnego komfortu
  • Wodoszczelny, inteligentny zamek do drzwi
  • Panel dotykowy do sterowania oświetleniem i kontrolą dostępu
  • System projekcyny – projektor i ekran

  • System zasłon/żaluzji na wymiar z trwałego materiału z napędem elektrycznym

  • Inteligentny system sterowania głosowego i za pomocą aplikacji dla całego domu

  • Elektryczne ogrzewanie podłogowe

  • System rekuperacji (wentylacja mechaniczna)

  • Elektryczny bojler o pojemności 60 litrów

  • Dodatkowe oświetlenie dekoracyjne

Często zadawane pytania

Tak. W standardzie otrzymujesz w pełni umeblowany i wyposażony dom: łóżko, sofę, kuchnię, łazienkę, klimatyzację, oświetlenie i tekstylia.

T-House jako obiekt modułowy nie wymaga pozwolenia na budowę, lecz zgłoszenia. Pomagamy w całym procesie formalnym.

Tak. Dzięki wielowarstwowej izolacji i technologii okien, T-House utrzymuje komfortową temperaturę przez cały rok, generując niskie koszty ogrzewania.

Tak. Dom nie wymaga ciężkiego fundamentu. Wystarczą bloczki, stopy fundamentowe lub mikropale. Możliwy montaż nawet na nierównym terenie.

Zacznij budować swój pasywny przychód już dziś!

Skontaktuj się z naszym zespołem doradców, aby omówić szczegóły, opcje personalizacji i otrzymać indywidualną wycenę.

Dane podstawowe
Informacje o realizacji
Dodatkowe informacje

Sprawdź inne modele

Każdy T-House jest w pełni wyposażony i gotowy do zamieszkania od ręki. Wybierz model, który najlepiej odpowiada Twoim potrzebom i zacznij cieszyć się własną przestrzenią w zaledwie 30 dni.